Công trình này là dự án cải tạo một căn nhà ống đô thị chật hẹp cho ba thế hệ, tập trung vào việc tạo sự kết nối hài hòa giữa không gian chung và riêng tư. Các kiến trúc sư đã điều chỉnh cấu trúc, bố trí khu vực sinh hoạt chung tại trung tâm và bao quanh bởi các phòng riêng tư, với thứ tự ưu tiên từ ông nội, bố mẹ đến con cái để cân bằng tinh tế. Một không gian đệm chiến lược ở trung tâm không chỉ cải thiện vi khí hậu mà còn khéo léo xóa nhòa ranh giới, giúp gia đình vừa có "khoảng trời riêng" vừa dễ dàng tương tác. Điểm nhấn kiến trúc là mặt tiền gần như trong suốt, nhưng được thiết kế tinh tế để đảm bảo riêng tư tuyệt đối cho các hoạt động nội bộ.

Công trình này, nguyên bản là một căn nhà ống đô thị chật hẹp, nơi ba thế hệ cùng chung sống, đã đặt ra yêu cầu đặc biệt từ gia chủ đối với đội ngũ kiến trúc sư (KTS).




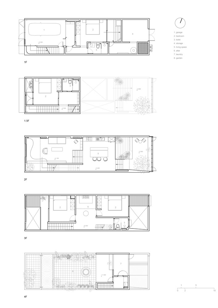
Các KTS đã thực hiện điều chỉnh cấu trúc từng tầng nhằm đảm bảo sự liền mạch trong dòng chảy không gian. Đồng thời, việc kiến tạo các không gian mở đã thúc đẩy sự kết nối, hài hòa giữa các khu vực riêng tư và cộng đồng trong ngôi nhà.

Không gian sinh hoạt chung được quy hoạch tại vị trí trung tâm theo trục dọc của ngôi nhà, được bao bọc bởi các phòng riêng tư theo một nguyên tắc sắp xếp khoảng cách có chủ đích. Cụ thể, phòng ông nội được ưu tiên đặt gần nhất với khu vực chung, tiếp đến là phòng của bố mẹ và cuối cùng là phòng của con cái, tạo nên sự cân bằng tinh tế.


Trung tâm ngôi nhà được bố trí một không gian đệm chiến lược. Khu vực này không chỉ góp phần cải thiện vi khí hậu nội thất mà còn khéo léo xóa nhòa ranh giới cứng nhắc giữa các không gian riêng tư và khu vực sinh hoạt chung.

Nhờ thiết kế này, các thành viên trong gia đình có thể tận hưởng ‘khoảng trời riêng’ của mình, đồng thời vẫn duy trì khả năng tương tác và kết nối qua ánh nhìn, cử chỉ tinh tế hoặc âm thanh nhẹ nhàng.




Điểm nhấn kiến trúc độc đáo của ngôi nhà nằm ở mặt tiền gần như trong suốt, cho phép tầm nhìn từ bên ngoài vào. Tuy nhiên, các KTS đã bố trí một cách tinh tế để đảm bảo rằng người đi đường chỉ quan sát được khu vực hiên phía trước, trong khi sự riêng tư của các hoạt động nội bộ vẫn được bảo toàn tuyệt đối.












